**Non-seamless Trolley Wire** is powered by oxygen-free copper, offering excellent conductivity, strong pressure performance, and stable contact. It is designed for easy installation, wear resistance, and simple replacement, making it convenient for transportation and maintenance. This type of trolley wire is less likely to be damaged, thus extending its service life. The product incorporates advanced technology, refined craftsmanship, and an elegant appearance, making it an ideal choice for upgrading industrial systems. It integrates the latest technological advancements, continuously innovates, and offers a standardized and serialized product line that can be customized according to user requirements.
The **non-slip contact line track** features a continuous design without connectors, using oxygen-free copper as the conductor for superior conductivity and pure quality. Its bright surface color ensures high-quality aesthetics. The copper and plastic components are tightly bonded, preventing damage from vibrations. The insulator is made of PVC with impact and UV resistance, ensuring excellent physical properties. With no joints, the system experiences minimal voltage drop. Fewer parts mean easier installation—installation time is reduced by two-thirds. Additionally, the collector arm is equipped with an independent extension spring, allowing for smooth movement and flexibility.
The **non-seam spliced wire** is also powered by oxygen-free copper, offering double conductivity and excellent contact performance. It is easy to install, replace, and transport, and reduces the risk of damaging the trolley wire, leading to a longer service life. The product combines advanced technology, precise manufacturing, and an attractive design, making it a modern solution for industrial upgrades.
**Seamless Slip Line Features:**
1. No joints mean easier installation, saving time and space.
2. The conductor is made of high-purity oxygen-free copper, ensuring good conductivity and a bright, clean appearance.
3. The bending radius is small, with a minimum of 750mm, allowing for flexible routing.
4. Copper and plastic are closely bonded, resisting vibration and maintaining stability.
5. The insulator uses a special PVC formula with impact and UV resistance, providing excellent durability.
6. Fewer components simplify the structure, and the track can be easily snapped in place, reducing installation time by two-thirds.
7. The collector arm includes an independent extension spring, allowing for smooth movement and a larger arc of motion.
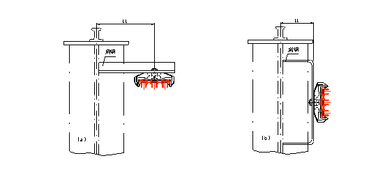
**Seamless Installation Method:**
When installing 3-pole, 4-pole, or 6-pole sliding lines with curves, a side-type construction method must be used. At the start of a turn, a straight slide clamp should be installed every 0.5 meters. The power supply tensioner for 3-pole, 4-pole, and 6-pole lines should be mounted approximately 5 meters higher than the clamp. However, these types of sliding wires are not recommended for outdoor use or areas with high acid or alkaline content.
**Installation Diagram:**

This seamless trolley wire system is ideal for modern industrial environments where reliability, efficiency, and ease of maintenance are crucial. Whether you're upgrading an existing system or designing a new one, this product offers a smart and effective solution.
High Transparency Laminated Smart Film
YuGugang have produced standard Intelligent Smart Film for lamination for nearly 8 years. Switchalbe Film used for produced of Laminated Switchable Smart Glass.
PDLC Switchable Smart Film for lamination is available in widths up to 2150mm with a maximum sheet length of 9000mm, which can be cut to any size or shape.
Intelligent Glass already supplies several of the world's largest glass laminators. If your company is looking to produce your own Intelligent Glass, please contact us for more information about becoming an OEM Partner.
A simple ON-OFF Smart Privacy Glass from being clear (transparent) to frosted (opaque). Smart Film its laminated with EVA Film with a standard autoclave.
High Transparency Laminated Smart Film,Laminated Smart Film,Intelligent Film,Smart Film In Building Glass
Shenzhen YuGuang New Material Co.,Ltd , https://www.ygsmartfilm.com